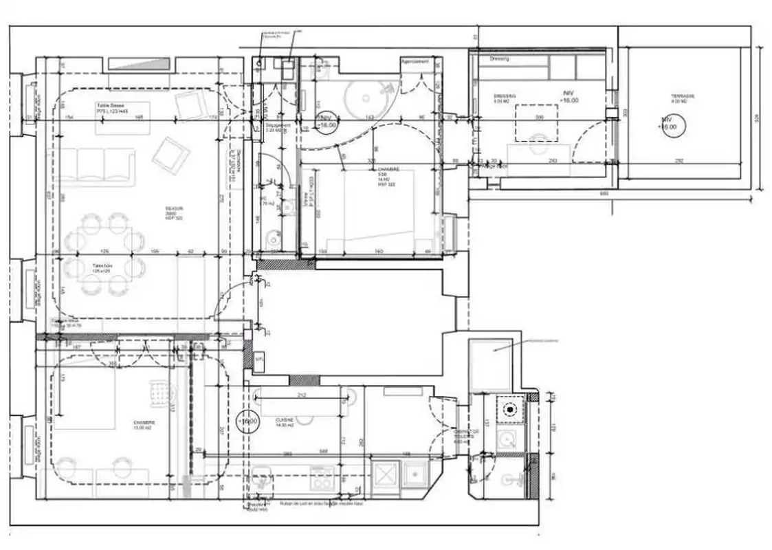
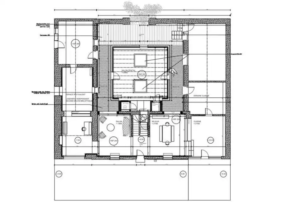
LES OUTILS

Les Plans

Après avoir effectué un relevé des lieux, les propositions d’aménagements sont produites. Elles se définissent par l’approche ergonomique et esthétique.

Les Volumes

Leur appréciation se détermine par les couleurs et les textures des matériaux qui constituent ces surfaces. Les matériaux sont une source d’inspiration très riche et chaque conception y est intimement liée. 

Les Chantiers

Après avoir planifié les travaux, le suivi de chantier est hebdomadaire jusque à la réception des travaux avec l’établissement d’un procès verbal de réception.